Ürün Açıklaması
158 m² 4+1 Çift Katlı Prefabrik Ev – Modern Tasarım, Konforlu Yaşam
İdeal yaşam alanınızı arıyorsanız, 158 m²’lik 4+1 odalı çift katlı prefabrik ev, modern tasarımı, geniş iç mekanları ve dayanıklı yapısıyla mükemmel bir seçenek sunuyor. Şık dış cephesi, fonksiyonel iç yapısı ve kaliteli malzemeleri ile uzun yıllar boyunca güvenle kullanabileceğiniz bir ev.
Ev Özellikleri ve Avantajları
- Betopan Dış Cephe Tasarımı:
Evin dış cephesinde kullanılan Betopan, estetik görünümleri ve yüksek dayanıklılığı ile dikkat çeker. Bu malzeme, hem güvenli hem de uzun ömürlü kullanım sağlar, evinizin dış görünümüne şıklık katarken dayanıklılığı ile de yıllarca sizi memnun eder. - Geniş İç Mekan Düzeni:
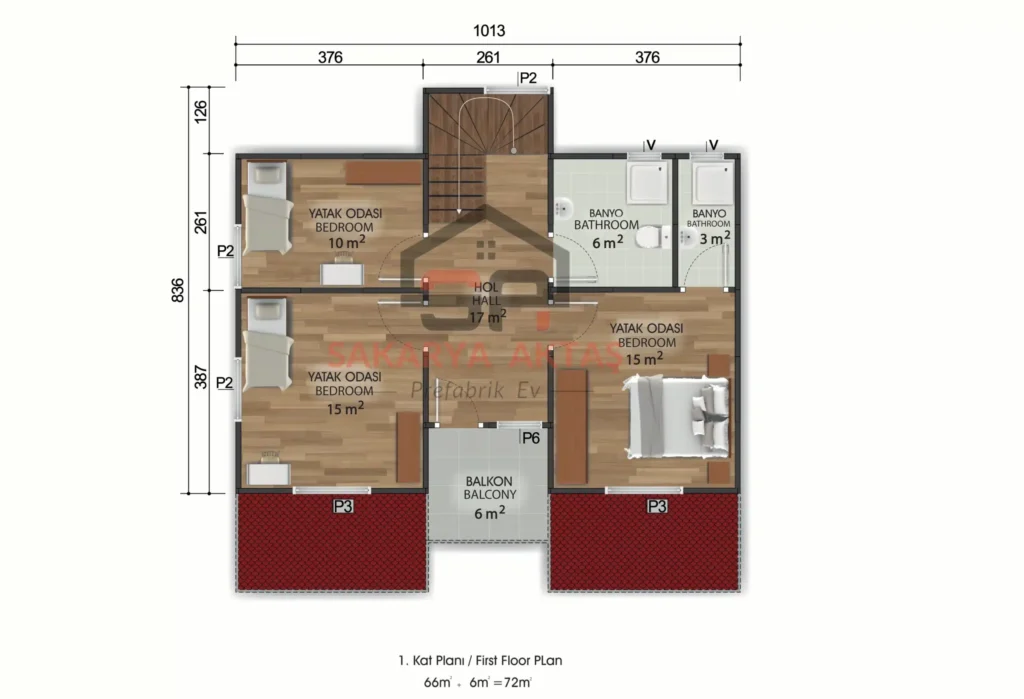
158 m²’lik yaşam alanında bulunan 4+1 oda düzeni, geniş ve rahat bir yaşam alanı sunar. Aileniz için ideal olan bu evde, her odada rahatlık ve kullanım kolaylığı sağlanır. - Yüksek Yalıtım Performansı:
İç duvarlar 10 cm, dış duvarlar ise 10 cm kalınlığında olup, ısı ve ses yalıtımını mükemmel şekilde sağlar. Bu sayede hem enerji tasarrufu sağlanır hem de evdeki iç mekan konforu arttırılır. - Kurşunsuz PVC Pencereler:
ERPEN markalı kurşunsuz PVC pencereler, enerji verimliliğini artırarak ısı kaybını azaltır. Ayrıca ses yalıtımı sağlayarak, evinizin dış seslerden izole olmasına yardımcı olur.
Modern İç ve Dış Detaylar
- Çatı Kaplama Seçenekleri:
Dayanıklı boyalı galvaniz sac çatı, evinizin uzun ömürlü olmasını sağlar. İsteğe bağlı olarak metal kiremit seçeneği ile evinize zarif bir görünüm kazandırabilirsiniz. - İç Kapılar:
Evin iç mekanlarında kullanılan Amerikan göbekli kapılar, modern ve şık tasarımı ile yaşam alanınıza zarif bir dokunuş ekler. Dayanıklı yapıları ile uzun yıllar boyunca kullanılabilir. - Balkon Kapıları:
PVC Kapı Pakpen balkon kapıları, dış mekanla uyumlu ve sağlam yapısıyla evinizin şıklığını pekiştirir. Hem estetik hem de fonksiyonel özellikleri ile dış mekanla entegrasyonu sağlar.
Fonksiyonel ve Estetik Elektrik ve Sıhhi Tesisatlar
- Sıva Altı Elektrik ve Sıhhi Tesisat:
Elektrik ve sıhhi tesisatlar sıva altına döşenmiş olup, estetik açıdan düzenli ve şık bir iç mekan sunar. Hem güvenli hem de pratik bir kullanım sağlar. - Geniş ve Konforlu Banyo Tasarımları:
2 banyoya sahip olan bu ev, modern ve fonksiyonel tasarımlarla donatılmıştır. Banyolarda her ayrıntı düşünülerek konforlu bir yaşam alanı yaratılmıştır.
Eviniz İçin İdeal Bir Yaşam Alanı
158 m²’lik 4+1 çift katlı prefabrik ev, geniş iç mekanları, estetik dış yapısı ve modern tasarımı ile aileniz için mükemmel bir yaşam alanı sunar. Yüksek kaliteli malzemelerle inşa edilmiş bu ev, hem iç hem de dış mekan konforunu en üst düzeye çıkarır.
Ev Bilgisi
Number ID
14
Type
Çift Katlı Prefabrik Ev
Bed
4
Bath
1
Size
158 m2
Fiyata Dahil Olanlar
- Elektrik ve Sıhhi Tesisat Çekimi
- İç Amerikan Kapıları Montajı
- İç ve Dış Cephe Boyası
- Pencere Montajı (Çalışır Teslim)
- Prefabrik Konut Montajı
- Priz, Anahtar ve Armatür Montajı
Fiyata Dahil Olmayanlar
-
Zemin betonu ve hafriyat işlemleri
-
Zemin, mutfak dolabı şap işlemleri
-
Prefabrik konut harici dış bağlantılar
-
Gerekli yasal izinler ve işlemler
-
Isıtma ve soğutma tesisatları
-
Her türlü yalıtım işlemleri

