Ürün Açıklaması
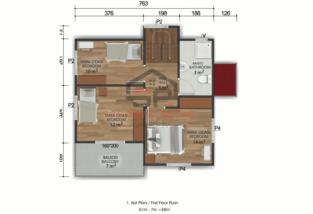
3+1 Çift Katlı 118 m² Prefabrik Ev – Şıklık ve Konforu Bir Arada Sunuyor
Evinizi daha geniş, daha konforlu ve estetik bir hale getirin! 118 m², 2 katlı, 3+1 odalı prefabrik ev, estetik tasarımı ve işlevsel yapısıyla modern yaşam alanları sunar. Ahşap desenli dış cephe, kaliteli iç detaylar ve geniş odalar, bu evde aradığınız konforu bulmanızı sağlar.
Ev Özellikleri ve Kullanıcıya Sunulan Avantajlar
- Estetik Dış Cephe Tasarımı:
Ahşap desenli Betopan dış cephe malzemesi, evinize doğal bir görünüm kazandırırken, dayanıklılığı ile uzun ömürlü kullanım sağlar. - Geniş İç Mekan Düzeni:
3+1 odalı ve 118 m² kullanım alanına sahip bu ev, aileniz için geniş yaşam alanları sunar. Konforlu odalar, fonksiyonel iç mekan düzeni ile evinize modern bir hava katar. - Yüksek Isı ve Ses Yalıtımı:
İç duvarlar 10 cm, dış duvarlar ise 10 cm kalınlığında olup, mükemmel bir ısı ve ses yalıtımı sağlar. Bu özellik, enerji verimliliği ve yaşam kalitesi açısından önemli bir avantajdır. - Sağlam ve Güvenli Pencereler:
Kurşunsuz PVC ERPEN pencereler, hem güvenlik hem de enerji verimliliği açısından üstün performans gösterir. Bu pencere sistemleri, evinizin iç mekanını dış etkenlerden korur.
Modern İç ve Dış Detaylar
- Çatı Kaplama Seçenekleri:
Çatıda kullanılan boyalı galvaniz sac malzeme, dayanıklılığı ve uzun ömürlü yapısıyla ön plana çıkmaktadır. Ayrıca, metal kiremit opsiyonu da tercih edilebilir, bu da evinize estetik bir görünüm sağlar. - İç Kapılar:
Evin iç mekanlarında Amerikan göbekli kapılar kullanılmıştır. Bu kapılar, modern tasarımı ve zarif görünümü ile iç mekana şıklık katar. - Balkon Kapısı:
PVC Kapı Pakpen balkon kapısı, dayanıklı ve estetik bir seçenek olup, evinizin dış alanıyla uyumlu bir görünüm sunar.
Sıva Altı Elektrik ve Sıhhi Tesisat
- Gizli Elektrik ve Sıhhi Tesisat:
Elektrik ve sıhhi tesisatlar, sıva altına döşenmiş olup, estetik açıdan iç mekanın düzenini korur. Ayrıca, güvenli kullanım sağlayacak şekilde tasarlanmıştır.
Ev Bilgisi
Number ID
6
Type
Çift Katlı Prefabrik Ev
Bed
3
Bath
1
Size
118 m2
Fiyata Dahil Olanlar
- Elektrik ve Sıhhi Tesisat Çekimi
- İç Amerikan Kapıları Montajı
- İç ve Dış Cephe Boyası
- Pencere Montajı (Çalışır Teslim)
- Prefabrik Konut Montajı
- Priz, Anahtar ve Armatür Montajı
Fiyata Dahil Olmayanlar
-
Zemin betonu ve hafriyat işlemleri
-
Zemin, mutfak dolabı şap işlemleri
-
Prefabrik konut harici dış bağlantılar
-
Gerekli yasal izinler ve işlemler
-
Isıtma ve soğutma tesisatları
-
Her türlü yalıtım işlemleri

