Ürün Açıklaması
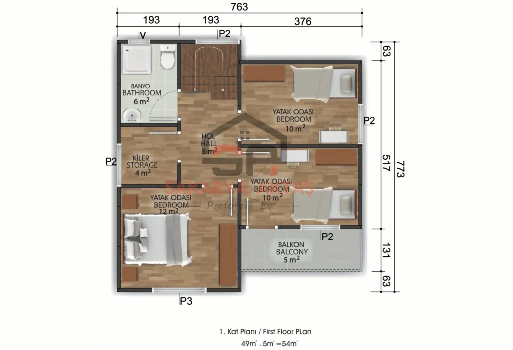
105 m² 3+1 Çift Katlı Prefabrik Ev – Modern Tasarım ve Konfor
Geniş ve Estetik Tasarımlı Yaşam Alanı! 105 m² büyüklüğündeki bu 3+1 odalı prefabrik ev, aileler için mükemmel bir yaşam alanı sunuyor. Şık dış cephe tasarımı ve sağlam yapısıyla öne çıkarken, iç mekanları da konforlu ve kullanışlı.
Ev Özellikleri
- Geniş İç Mekanlar:
105 m² alanda yer alan 3+1 oda, geniş yaşam alanları ve fonksiyonel bir düzen sunar. Ailenizin ihtiyaçlarını karşılayacak şekilde tasarlanmıştır. - Sağlam Dış Cephe:
Betopan dış cephe malzemesi ile dayanıklı ve estetik bir dış görünüm sağlanmıştır. Hem dış etkilere karşı korur hem de modern bir tasarım sunar. - Yüksek Yalıtım ve Dayanıklılık:
İç duvarlar 10 cm, dış duvarlar 10 cm kalınlığında olup, mükemmel ısı ve ses yalıtımı sağlar. Hem yazın serin, kışın sıcak bir ortam sunar. - Kurşunsuz PVC Pencereler:
ERPEN kurşunsuz PVC pencereler, enerji verimliliği sağlar ve uzun ömürlüdür. Yüksek yalıtım özelliğiyle iç mekan konforunu artırır. - Çatı Kaplama Seçenekleri:
Boyalı galvaniz sac çatısı dayanıklıdır, ayrıca metal kiremit seçeneği ile opsiyonel olarak tercih edilebilir. - İç Kapılar:
Amerikan göbekli kapılar, estetik ve sağlamlık açısından ideal bir seçimdir. Şık ve modern bir iç mekan tasarımı sağlar. - Balkon Kapıları:
2 adet PVC balkon kapısı, dış mekanla bütünleşerek aydınlık ve ferah bir atmosfer yaratır.
Elektrik ve Sıhhi Tesisat Detayları
- Sıva Altı Elektrik Tesisatı:
Elektrik tesisatı sıva altına döşenmiş olup, iç mekan tasarımına zarar vermeden güvenli kullanım sunar. - Sıhhi Tesisat:
Sıhhi tesisat da sıva altına yerleştirilmiş olup, estetik düzeni bozmadan dayanıklı bir sistem sağlar.
Ev Bilgisi
Number ID
4
Type
Çift Katlı Prefabrik Ev
Bed
3
Bath
1
Size
105 m2
Fiyata Dahil Olanlar
- Elektrik ve Sıhhi Tesisat Çekimi
- İç Amerikan Kapıları Montajı
- İç ve Dış Cephe Boyası
- Pencere Montajı (Çalışır Teslim)
- Prefabrik Konut Montajı
- Priz, Anahtar ve Armatür Montajıa
Fiyata Dahil Olmayanlar
-
Zemin betonu ve hafriyat işlemleri
-
Zemin, mutfak dolabı şap işlemleri
-
Prefabrik konut harici dış bağlantılar
-
Gerekli yasal izinler ve işlemler
-
Isıtma ve soğutma tesisatları
-
Her türlü yalıtım işlemleri

